




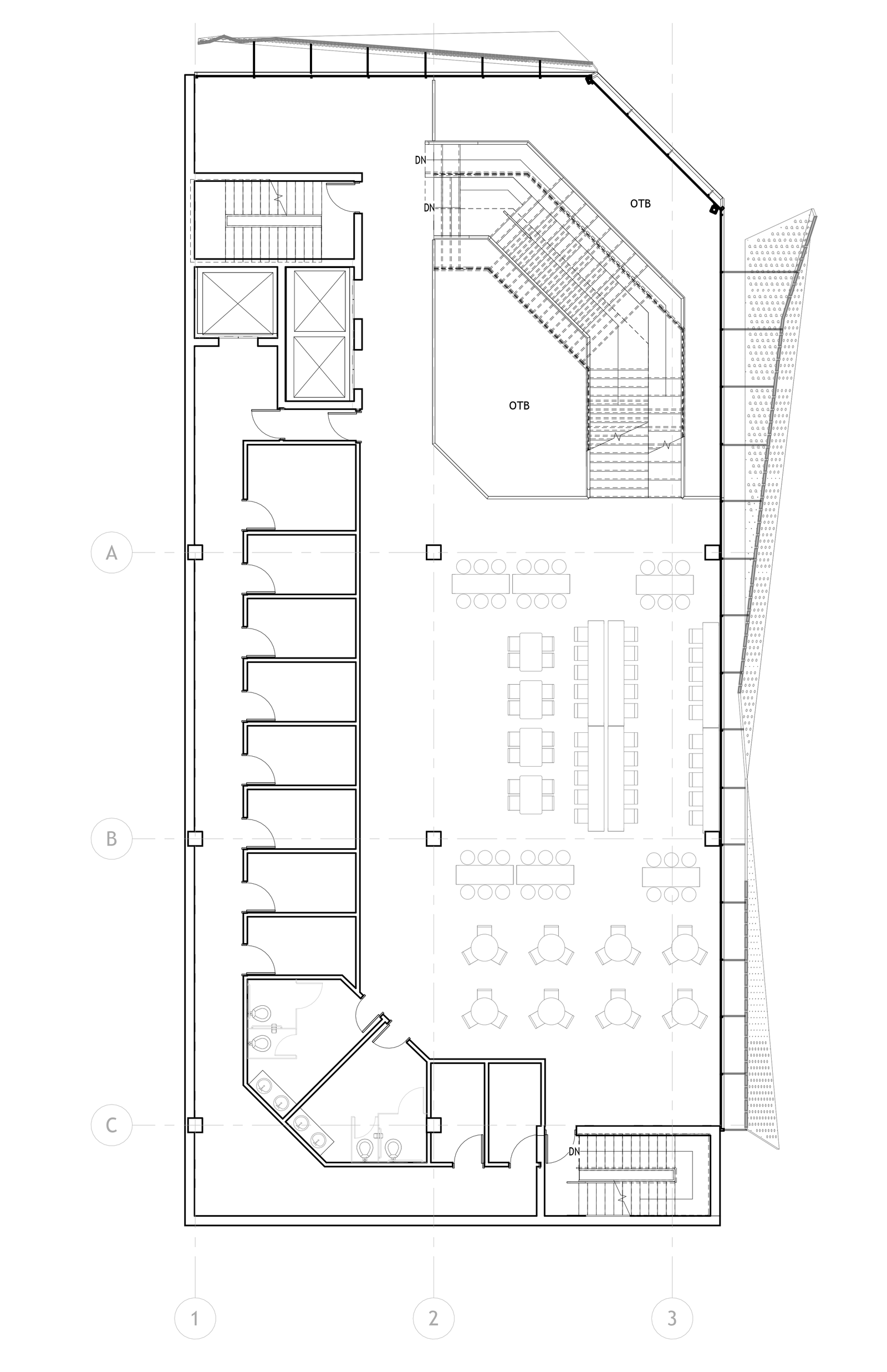
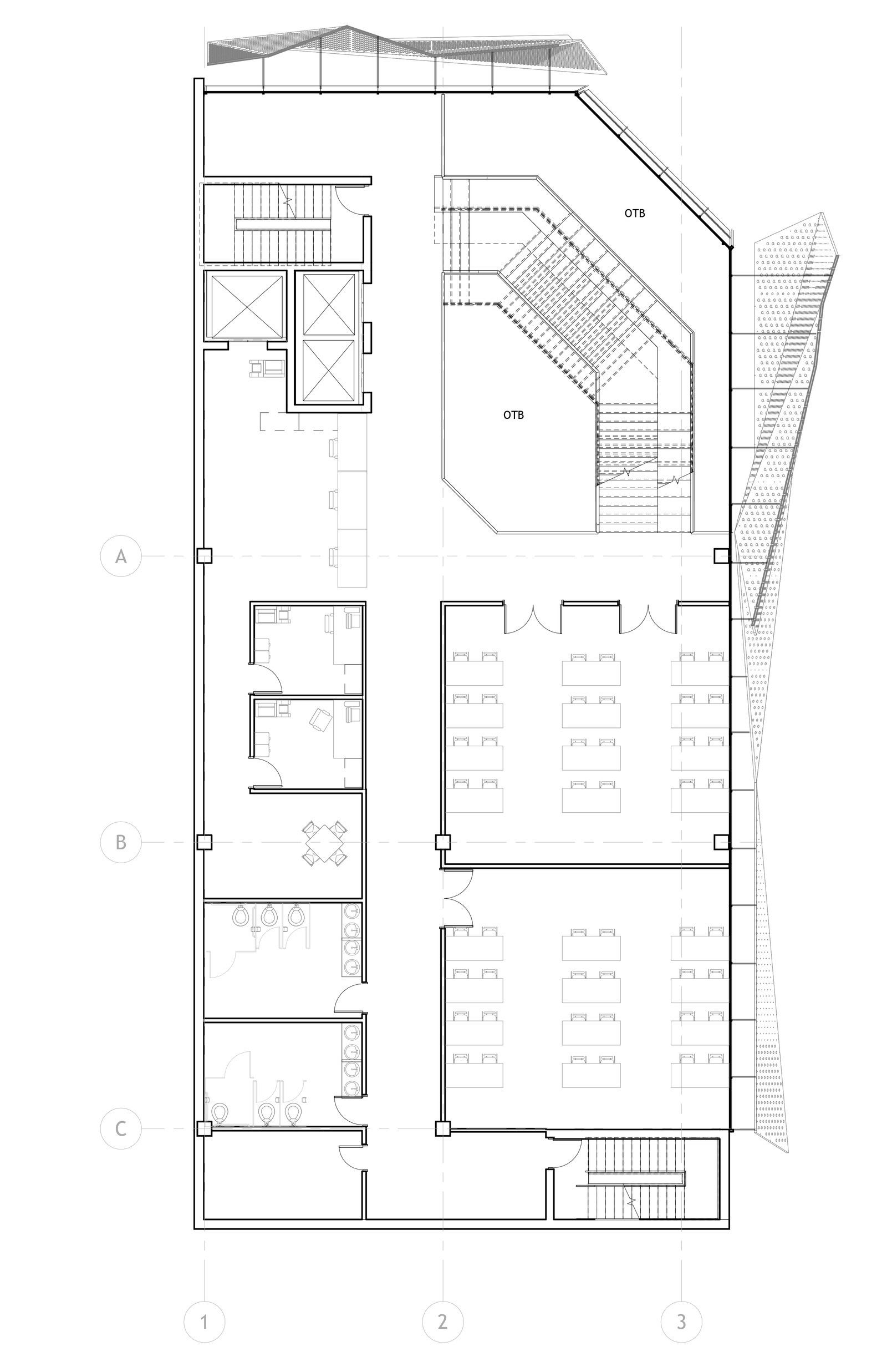
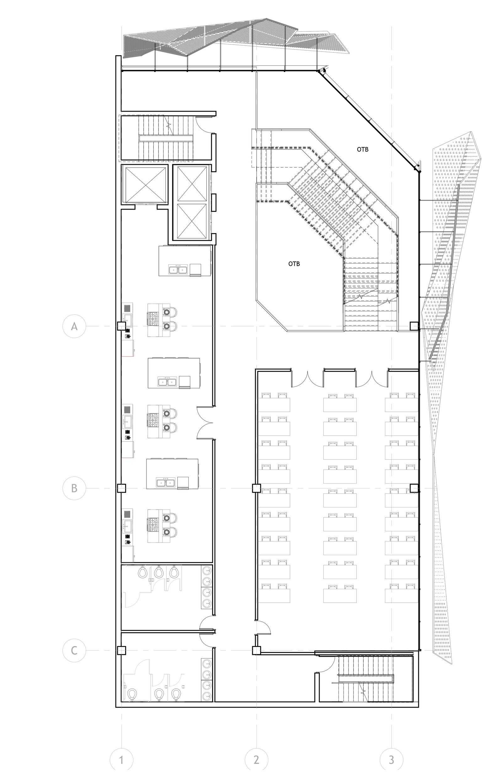
Staggered Dining Hall
Institutional Food Dining Hall
ASC301, Fall 2025
Giving The Space Back To The Students
At the busiest intersection at the Toronto Metropolitan University campus, Gould Street and Yonge Street collide to create a chaotic and clogged environment to one of the most important thresholds for the university. Across from the main campus building, the SLC, currently sits the World Food Market, a controversial and awkward vendor space that feels desolate. The Staggered Food Dining Hall replaces the World Food Market to open up the corner and to provide a structure that makes the intersection truly feel like a grand entrance to the university campus, and a space that is for the students first.











×
❮
❯